2009-02-28

耐震金物など


この家に使っている耐震金物などを紹介します。
全部見せることは出来ませんが、法律に従って”N値計算”をして
強度に見合った物を設置しています。

”N値計算”を簡単に説明すると、壁に大きな力が加わった時に筋交はつっかえ棒の役割をします。そのとき柱と梁や、柱と土台が固定されていないと筋交いの力で柱のほぞが抜けてしまうのです。
この規定は阪神淡路大震災の教訓を受けて改訂されたものです。

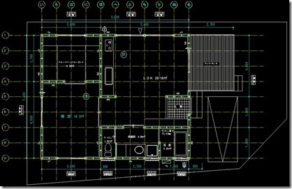
↓ 番付け(900mmピッチでポイントを示しています)
自然素材 平面図

自然素材 金物


い・3・下

 

土壁の家 金物
い・1・下
自然素材 金物
い・1・上
自然素材 金物
ほ・9・下
自然素材 金物
ほ・9・上
自然素材 金物
へ・9・上

フリーダムコーナー
自然素材 耐震金物
ほ・7・上

ビルトコーナー
フリーダム筋交いプレート
自然素材 耐震金物
り・9・下

(鋼製火打ち土台)
フリーダム鋼製火打ち
自然素材 耐震金物
る・5・上

(鋼製火打ち梁)
フリーダム鋼製火打ち

ホーマープレート
自然素材 耐震金物
る・5・下
自然素材 耐震金物
ほ・5・上
自然素材 耐震金物
へ・5・下
自然素材 耐震金物
る・9・上
自然素材 耐震金物
る・7・下
自然素材 耐震金物
る・1・上

ホールダウン
H-HD1520
自然素材 耐震金物
ほ・8・上
自然素材 耐震金物
ほ・1・上
自然素材 耐震金物
ほ・1・下
自然素材 耐震金物
ろ・9・上

(垂木留め金物)
ひねり金物

とはいっても実際の地震にどのくらいの効果があるかは分かりません。日本の古民家の構造のように、地震の力に逆らい過ぎずに大きな被害を免れるという考え方もあります。
はたして10年後20年後にどれくらい金物のビスが効いているのか・・・
出来るだけ金物に頼らない家造りを目指したいです。

土壁の家 ietoka

0 件のコメント: